86316 Friedberg
Projektiertes Grundstück | Dohlenbachhof - Stilvoll Wohnen in Stätzling
Kaufpreis
0 €
0 €
Baujahr
Schlafzimmer0
Badezimmer0
Wohnfläche0 m2
Grundstücksfläche4.270 m2
| Zimmer | 0 |
| Anzahl Badezimmer | 0 |
| Anzahl Schlafzimmer | 0 |
| Wohnfläche ca. | 0 m2 |
| Preis | 0 € |
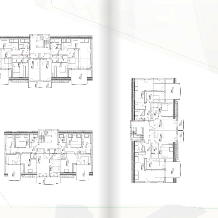
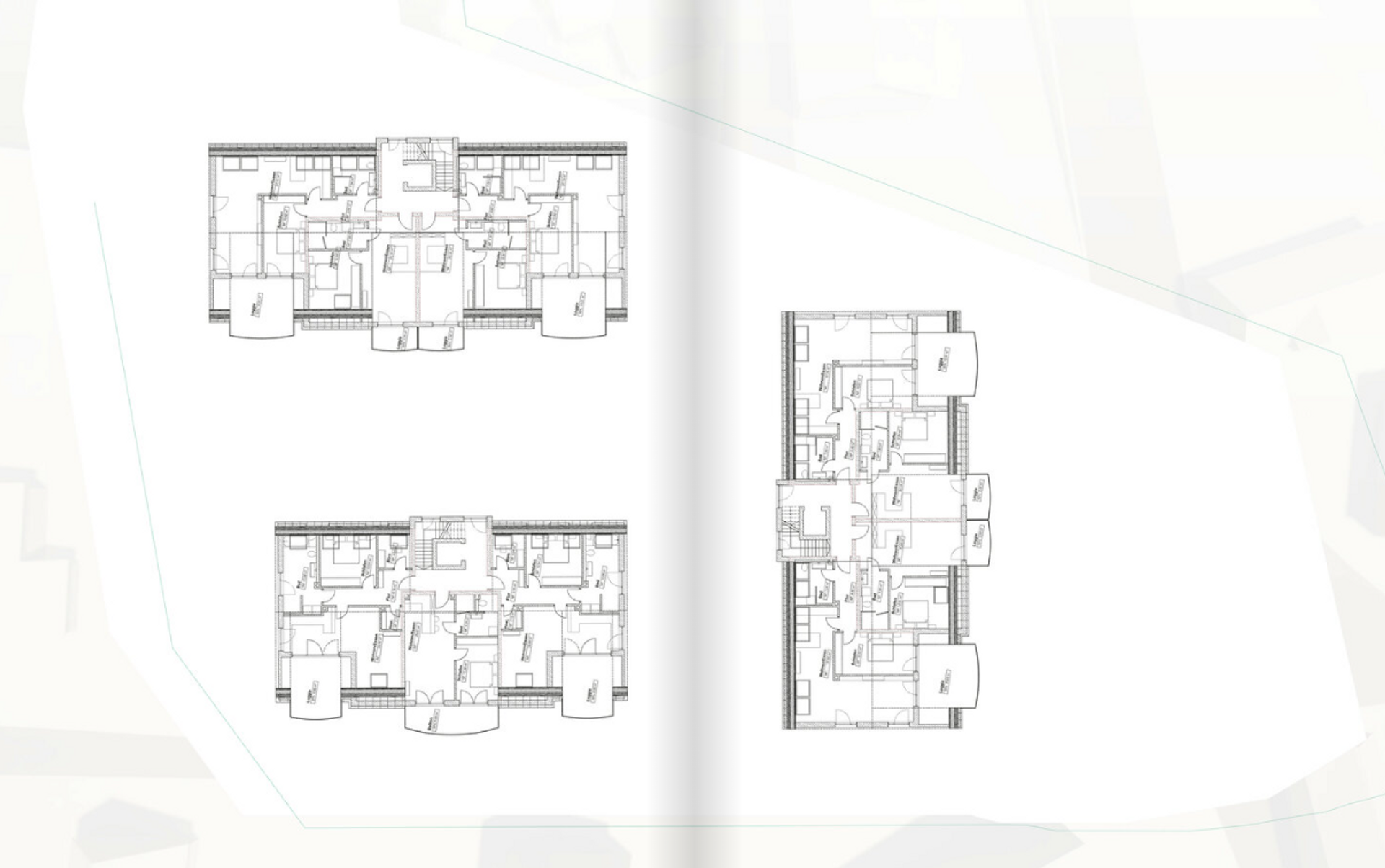
Im schönen Stätzling entsteht auf ca. 4.270 m² Grundstücksfläche eine moderne Mehrfamilienhausanlage. Vier locker geschnittene Baukörper mit Satteldach präsentieren insgesamt 45 Wohneinheiten. Die Tiefgarage verbindet die Häuser unterirdisch miteinander und wurde geschickt geplant, um eine einfache statische Ausführung zu gewährleisten. Über barrierefreie Treppenhäuser und Aufzüge gelangen Sie bequem von der Tiefgarage in alle Geschosse. Erweiterte Bewegungsflächen und großzügige Sanitärräume sorgen dafür, dass die meisten Wohnungen den Anforderungen der Barrierefreiheit nach BayBO entsprechen.
+ Ländlich moderne Architektur mit Satteldach II + D
+ Tiefgarage als Bindeglied der Häuser
+ Gestaltete Außenanlagen mit viel grünen Freibereichen und wenig Außenstellplätzen
+ Farbliche Absetzung oder Holz zwischen den Fenstern
+ Großzügige Balkone, Terrassen und Loggien für die Nutzung der Außenflächen
+ Optimales Einfügen in die Hanglage des Geländes (wenig Aushub)
+ Geleistete Genehmigungsplan, Entwässerungseingabe und vorliegendes geologisches Gutachten
+ Die meisten Wohnungen sind mit den erhöhten Anforderungen für Barrierefreiheit nach BayBO geplant
+ Große Technikflächen lassen Spielraum für verschiedene Heizungstechniken nach Wunsch des Bauherrn
+ Wohnungsgrößen im Schnitt bei ca. 75 m², mindestens 2-Zimmerwohnungen
+ Ländlich moderne Architektur mit Satteldach II + D
+ Tiefgarage als Bindeglied der Häuser
+ Gestaltete Außenanlagen mit viel grünen Freibereichen und wenig Außenstellplätzen
+ Farbliche Absetzung oder Holz zwischen den Fenstern
+ Großzügige Balkone, Terrassen und Loggien für die Nutzung der Außenflächen
+ Optimales Einfügen in die Hanglage des Geländes (wenig Aushub)
+ Geleistete Genehmigungsplan, Entwässerungseingabe und vorliegendes geologisches Gutachten
+ Die meisten Wohnungen sind mit den erhöhten Anforderungen für Barrierefreiheit nach BayBO geplant
+ Große Technikflächen lassen Spielraum für verschiedene Heizungstechniken nach Wunsch des Bauherrn
+ Wohnungsgrößen im Schnitt bei ca. 75 m², mindestens 2-Zimmerwohnungen
Konzept-Highlights:
+ Fahrstuhl in jedem Haus mit barrierefreiem Treppenhaus in alle Geschosse
+ Die meisten Wohnungen sind mit den erhöhten Anforderungen für Barrierefreiheit nach BayBO geplant
+ Wohnungsgrößen im Schnitt bei ca. 75 m², mindestens 2-Zimmerwohnungen
+ Waschmaschine in der Wohnung für bessere Erreichbarkeit (teils in Abstellräumen innerhalt der Wohnung)
+ Überdachte Mülltonnenhäuser im Freibereich
+ Große Technikflächen lassen Spielraum für verschiedene Heizungstechniken nach Wunsch des Bauherrn
+ Großer gemeinschaftlicher Grünplatz / Spielplatz
+ Zusätzlicher Abstellraum für jede Wohneinheit im Keller
+ Zwei große zentrale Fahrradabstellräume mit sehr guter Erreichbarkeit
| 45 Wohneinheiten | ~ 4.270 m² | 40 Tiefgaragenstellplätze | 15 Außenstellplätze | ~ 75 m² ⵁ Wohnungsgröße |
+ Fahrstuhl in jedem Haus mit barrierefreiem Treppenhaus in alle Geschosse
+ Die meisten Wohnungen sind mit den erhöhten Anforderungen für Barrierefreiheit nach BayBO geplant
+ Wohnungsgrößen im Schnitt bei ca. 75 m², mindestens 2-Zimmerwohnungen
+ Waschmaschine in der Wohnung für bessere Erreichbarkeit (teils in Abstellräumen innerhalt der Wohnung)
+ Überdachte Mülltonnenhäuser im Freibereich
+ Große Technikflächen lassen Spielraum für verschiedene Heizungstechniken nach Wunsch des Bauherrn
+ Großer gemeinschaftlicher Grünplatz / Spielplatz
+ Zusätzlicher Abstellraum für jede Wohneinheit im Keller
+ Zwei große zentrale Fahrradabstellräume mit sehr guter Erreichbarkeit
| 45 Wohneinheiten | ~ 4.270 m² | 40 Tiefgaragenstellplätze | 15 Außenstellplätze | ~ 75 m² ⵁ Wohnungsgröße |
Lagevorteile:
+ Ortsrandlage des Projektes mit perfekter Einbindung in den Ort
+ Metzger in ca. 100 m Entfernung
+ Supermarkt in ca. 600 m Entfernung
+ Bushaltestelle mit sehr guter Anbindung in die Nachbarstädte in ca. 650 m Entfernung
+ Randlage zur Stadt Augsburg und Friedberg
+ Fußläufiger Spaziergang über den Dohlenbachweg im Grünen
+ Optimale PKW-Verkehrsanbindung über die A8 nach München und Ulm
+ Allgemeinarzt und Apotheke im Ort
+ Eigener Gasthof, Friseur und viele weitere Geschäfte
+ Weitere Annehmlichkeiten sind in den Nachbarstädten leicht erreichbar
+ Ortsrandlage des Projektes mit perfekter Einbindung in den Ort
+ Metzger in ca. 100 m Entfernung
+ Supermarkt in ca. 600 m Entfernung
+ Bushaltestelle mit sehr guter Anbindung in die Nachbarstädte in ca. 650 m Entfernung
+ Randlage zur Stadt Augsburg und Friedberg
+ Fußläufiger Spaziergang über den Dohlenbachweg im Grünen
+ Optimale PKW-Verkehrsanbindung über die A8 nach München und Ulm
+ Allgemeinarzt und Apotheke im Ort
+ Eigener Gasthof, Friseur und viele weitere Geschäfte
+ Weitere Annehmlichkeiten sind in den Nachbarstädten leicht erreichbar











